4654 Rollingwood Ln, Glen Allen, VA 23060
Toggle Navigation
Images
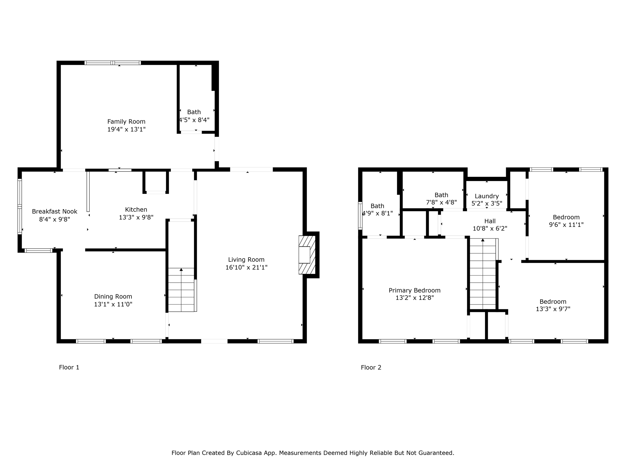
Floor Plans
Map
Previous Photo
Next Photo
Images
Slideshow
Photo Grid
Hide
Previous
Next
Show more
Floor Plans
Slideshow
Photo Grid
Hide
Previous
Next